+ 7 (812) 426-09-99

Пн-Пт с 09.00 до 18.00

Санкт-Петербург, ул. Дибуновская, д. 50, пом. 6 Н, оф. 207
Пн-Пт с 09.00 до 18.00
Оптима Синергидом

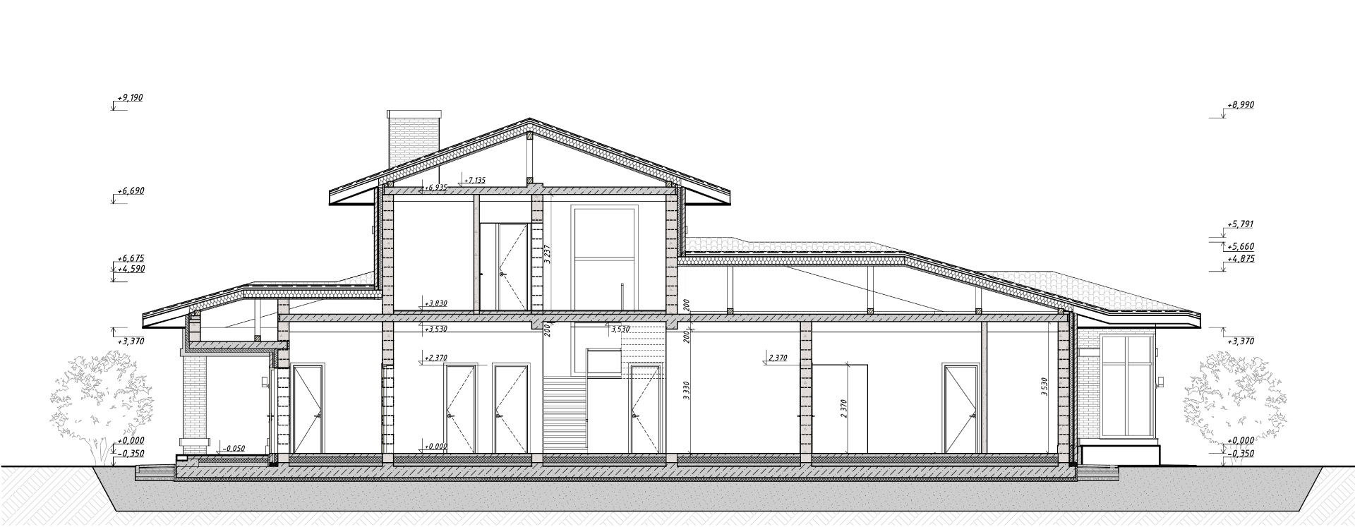
Проект дома Райт

Площадь, м²

319.7 м²

Спален

4

Санузлов

5

Стоимость от:

Газобетон: 14 386 500 ₽

Кирпич: 15 985 000 ₽

Монолит: 15 025 900 ₽

Проект "Райт" - двухэтажный престижный дом с фасадами в стиле «Райт» с отделкой из ригельного кирпича темного оттенка и декоративными элементами. На первом этаже расположены просторные холл, постирочная, котельная с двумя входами: из дома и с улицы, большая кухня с островом, угловым окном и потайной кладовой, гостиная с выходом на застекленную теплую веранду и тремя спальнями в обособленной части дома, обеспечивающими каждому члену семьи индивидуальное пространство, с санузлами и гардеробными в каждой,. На втором этаже - холл, санузел, сауна, гостевая спальня с гардеробом и кабинет

Архитектор

Адаптируем проект для Вас!

Я с радостью вам с этим помогу!

Стоимость проекта Райт

  • Архитектурный проект

  • Строительный паспорт

  • Дополнительный комплект заказанной проектной документации

Размер: 10х10
10х10 м
Площадь: 137.3 м2
137.3 м2
Количество спален: 3
3
Количество ванных: 3
3
Цена от: 6 865 000 ₽
Размер: 17х12,5
17х12,5 м
Площадь: 428.8 м2
428.8 м2
Количество спален: 4
4
Количество ванных: 5
5
Цена от: 11 705 559 ₽
Размер: 12х10
12х10 м
Площадь: 168.54 м2
168.54 м2
Количество спален: 3
3
Количество ванных: 2
2
Цена от: 4 733 412 ₽

Вы можете заказать
индивидуальный проект

Вы сможете представить, как будет выглядеть будущий дом, лично познакомиться с архитектором и увидеть наш профессиональных подход.